Imagine 99

Casa individuala cu 4 camere, in zona Tauti

ID: P4794 Tauti, Central 5
229.000€ + TVA
Descriere
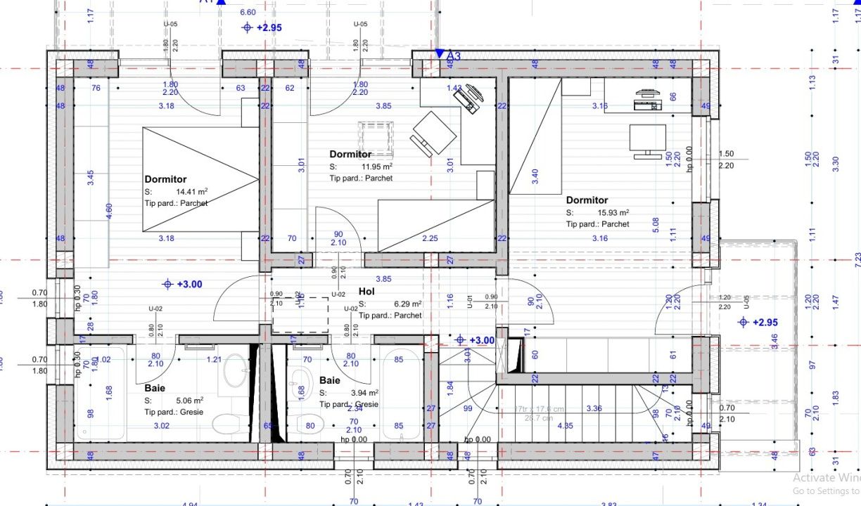
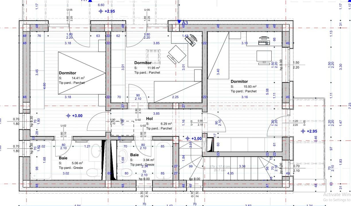
Va propunem spre vanzare o casa individuala cu 4 camere in Tauti, Cluj. Aceasta dispune de o suprafata utila de 120mp, suprafata terenului fiind de 300mp dintre care 70mp este amprentra la sol, ceea ce inseamna ca avem o suprafata de teren liber de 230mp. Compartimentarea casei care dispune de un regim de inaltime P+1+pod este urmatoarea:
-Parter: la parter avem bucataria open space si zona de living cu loc pentru luat masa si acces pe terasa
- hol
- baie
- spatiu tehnic
- casa scarilor catre etajul 1

-Etaj: la etaj avem 3 dormitoare, iar dormitorul matrimonial este cu baie privata si acces la balcon
-o baie spatioasa
- hol
Anul constructiei este 2025, casa construita cu materiale de inalta calitate.
Acces rapid catre Floresti, aproximativ 5 minute cu masina pana la Parcul Poligon, iar pana la Vivo aproximativ 10 minute cu masina.
La achizitia de catre persoane juridice se aplica taxare inversa (nu se plateste TVA).
Curtea este asezata astfel: in fata casei avem doua locuri de parcare, iar in spatele casei se gaseste gradina care poate fi amenajata dupa propriul gust. Pentru mai multe detalii sau pentru a programa o vizionare va rugam folositi ID EXTERN: P4794
Caracteristici
  • ID:P4794
  • Nr. camere:4
  • Nr. dormitoare:3
  • S. utila:120.00 mp
  • S. terase:25.00 mp
  • S. utila totala:145.00 mp
  • S. teren:300.00 mp
  • Nr. bucatarii:1
  • Nr. bai:3
  • Nr. balcoane:2
  • Nr. parcari:2
  • An constructie:2025
  • Regim inaltime:P+1
Specificatii
Curent
Apa
Canalizare
Gaz
Localizare
Bogdan Rus
Broker
Esti interesat de aceasta proprietate ?
Proprietati similare
TOP Imagine 3095
Casa individuala , 4 camere, teren 600 mp zona Chinteni
Chinteni 205.000€
4 camere 3 bai 116mp
TOP Imagine 7846
Casa individuala NZEB, 170mp utili, 500mp teren, 3 parcari Chinteni
Chinteni, Central 236.900€
4 camere 2 bai 170mp
TOP Imagine 1378
Duplex 4 camere, Suprafata 143 mp, curte 450 mp, Apahida
Apahida 230.000€
4 camere 3 bai 143mp
TOP Imagine 2760
Casa 4 camere, 115mp, Zona Dezmir | Cluj
Dezmir, Central 205.000€
4 camere 3 bai 115mp
TOP Imagine 724
Duplex cu 4 camere, 92 MP, zona Urusagului, Floresti
Floresti, Sesul de Sus 222.000€ + TVA
4 camere 2 bai 92mp
TOP Imagine 804
Cabana 50 mp, cartier Zorilor
Cluj-Napoca, Zorilor 195.000€
2 camere 1 baie 50mp