Imagine 99

Casa individuala de vanzare cu 5 camere, in Floresti

ID: P4876 Floresti, Tauti 7
390.000€
Descriere
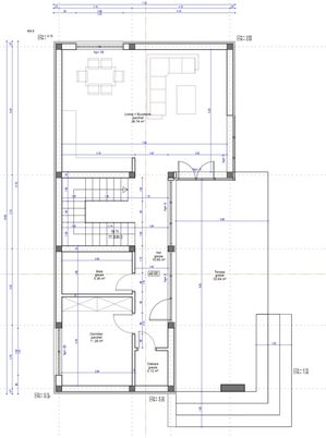
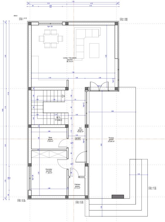
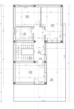
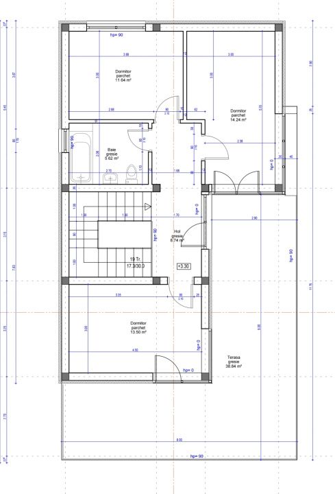
Va propunem spre vanzare casa individuala in Floresti. Casa este construita pe un regim de inaltime P+1 119.89mp utili plus 2 terase cu suprafata totala de 72.48mp si este compartimentata astfel:
- Parter
- Living open space cu bucatarie
- Hol
- Baie
- Debara
- Casa scarilor
- 1 Dormitor
- Terasa 33.64mp

- Etaj
- 3 Dormitoare
- Baie
- Casa scarilor
- Terasa 38.84mp.
Casa este localizata intr-o zona de case noi construite si este la aproximativ 7 minute de mers pe jos de parcul poligon si la cerere poate fi finisata si amenajata dupa cerintele dumneavoastra.
Pentru mai multe detalii sau programarea unei vizionari folositi ID Extern: P4876
Caracteristici
  • ID:P4876
  • Nr. camere:5
  • Nr. dormitoare:4
  • S. utila:119.89 mp
  • S. terase:72.48 mp
  • S. utila totala:192.37 mp
  • S. teren:300.00 mp
  • Nr. bucatarii:1
  • Nr. bai:2
  • Nr. parcari:2
  • An constructie:2025
  • Regim inaltime:P+1
Specificatii
Curent
Apa
Canalizare
Gaz
Localizare
Bogdan Rus
Broker
Esti interesat de aceasta proprietate ?
Proprietati similare
TOP Imagine 3237
Casa 3 camere + plantație de zmeura, 200 mp, Fodora, Cluj
Fodora 375.000€
3 camere 1 baie 200mp
TOP Imagine 3205
Duplex de 5 camere, in zona Feleacu
Feleacu, Central 350.000€
5 camere 2 bai 157.72mp
TOP Imagine 197
Duplex 5 camere, 193 MP+70 MP Terase Circulabile, Zona Iris, Cluj
Cluj-Napoca, Iris 410.000€
5 camere 3 bai 193mp
TOP 0% comision Imagine 2995
Casa individuala, finisata de vanzare, 120mp utili, zona Valea Garbaului
Floresti, Valea Garbaului 345.000€ 365.000€
4 camere 3 bai 120mp
TOP Imagine 1179
Casa individuala, 5 camere, 210 mp, zona VIVO
Floresti, Vivo (Polus Center) 342.000€ 372.000€
5 camere 2 bai 210mp
Imagine 12024
CASA INDIVIDUALA 3 CAM SU 100 MP, TEREN 799 MP, DAMBUL ROTUND
Cluj-Napoca, Dambul-Rotund 370.000€
3 camere 2 bai 100mp