Imagine 99

Duplex 4 camere, 104,1mp | Zona Buna-Ziua | Cluj-Napoca |

ID: P4395 Cluj-Napoca, Buna-Ziua 11
400.000€
Descriere
Oferim spre vânzare duplex într-o zona cu acces foarte bun, zona de case, zona retrasă de la trafic si cu panorama foarte frumoasă asupra orașului,duplexul fiind compartimentat astfel:
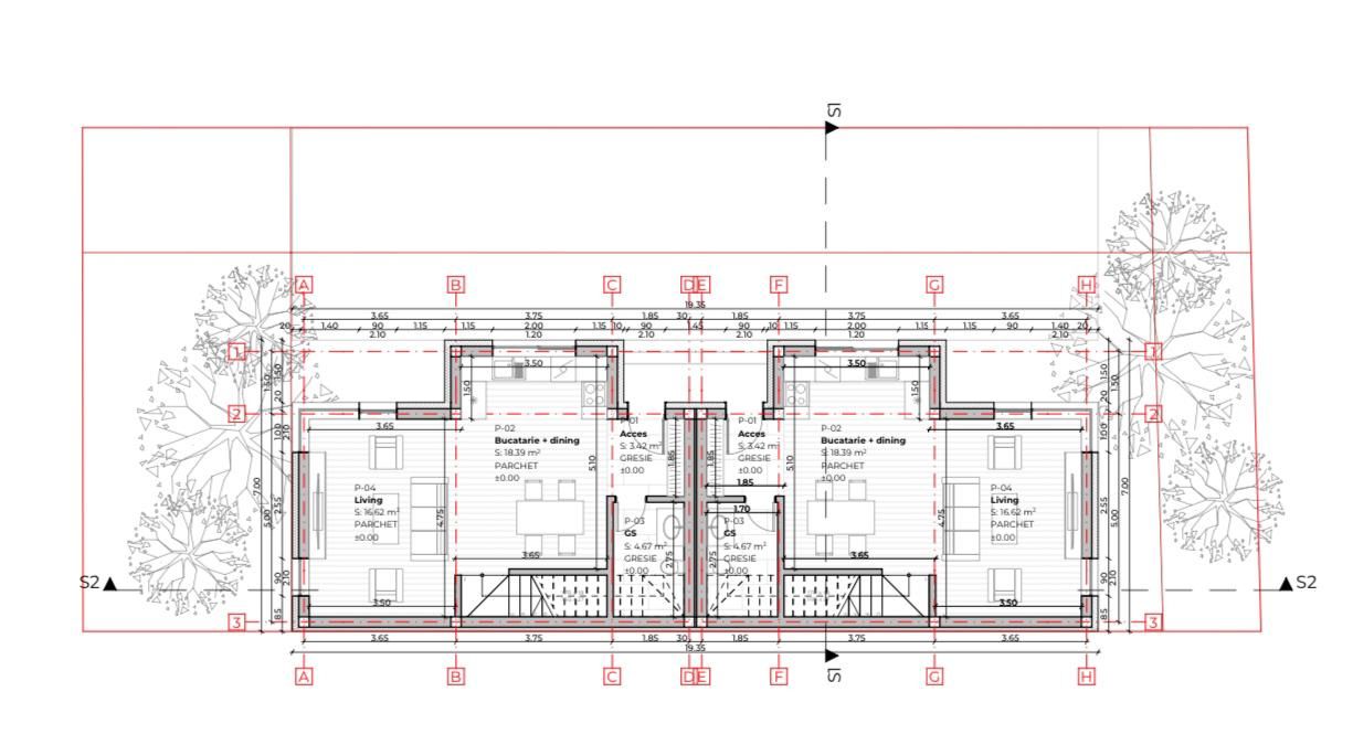
La parter: living,bucatarie,baie.
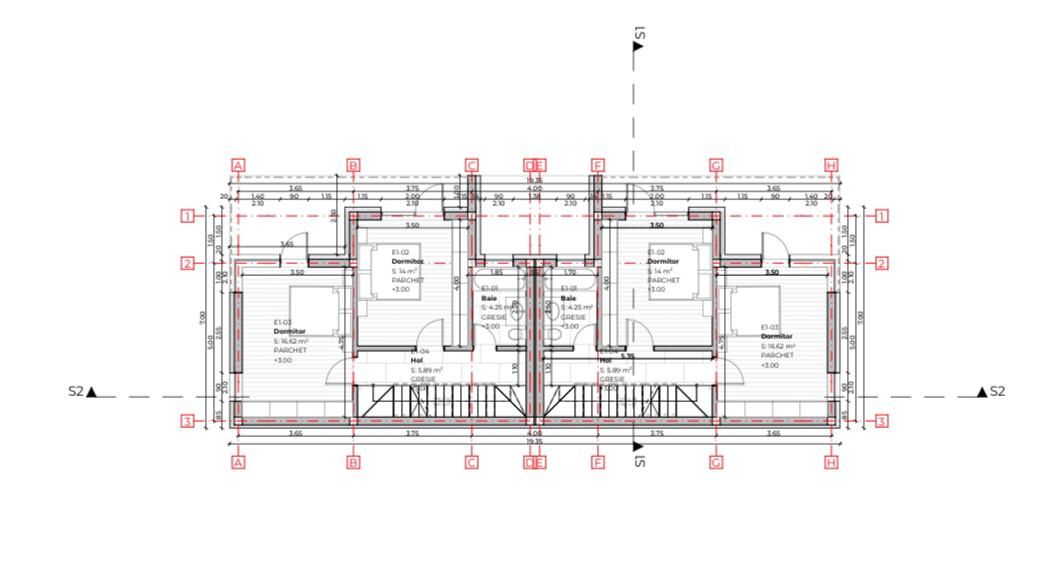
Etajul 1: 2 dormitoare, 1 baie, 1 hol
Etaj retras: 1 dormitor,1 baie,1 dressing.
Pereți tencuiți și gletuiti la înaltă precizie cu materiale de inalta calitate.
Încălzire în pardosea atât la parter cât și la etaj, termosistemul din polistiren de 15 eps 100,plasa și adeziv Baumit și tencuiala decorativa Wieka .Fațada principala cu piatra naturala .
Duplexul se preda semifinisat la interior, cu toate instalatiile electrice, termice si sanitare trase pe pozitii, incalzire in pardoseala, pereti gletuiti si sape autonivelante, tamplarie PVC cu geam termopan.
Exteriorul se preda complet finisat, iar curtea va fi amenajata si delimitata pentru fiecare unitate.
Panouri solare 6 kw.Zona foarte liniștită,dispune de toate utilitățile și asfalt.
Locatia in care se afla aceasta proprietate este una aproape de mijloacele de interes, acestea se pot enumera prin:
-Statie de BUS
-Hipermarket
-Scoli
-Gradinite
-Spatii verzi
Pretabil atat pentru investitie cat si pentru locuinta personala. Pentru mai multe detalii sau programarea unei vizionari folositi ID Extern: P4395
Caracteristici
  • ID:P4395
  • Nr. camere:4
  • Nr. dormitoare:3
  • S. utila:104.10 mp
  • S. construita:114.10 mp
  • S. teren:341.00 mp
  • Nr. bucatarii:1
  • Nr. bai:3
  • Nr. balcoane:2
  • Structura rezistenta:Caramida
  • Regim inaltime:P+1+M
Specificatii
Curent
Apa
Canalizare
Gaz
Centrala proprie
Incalzire pardoseala
Localizare
Amalia Bodea
Broker
Esti interesat de aceasta proprietate ?
Proprietati similare
TOP Imagine 3237
Casa 3 camere + plantație de zmeura, 200 mp, Fodora, Cluj
Fodora 375.000€
3 camere 1 baie 200mp
TOP Imagine 3205
Duplex de 5 camere, in zona Feleacu
Feleacu, Central 350.000€
5 camere 2 bai 157.72mp
TOP Imagine 197
Duplex 5 camere, 193 MP+70 MP Terase Circulabile, Zona Iris, Cluj
Cluj-Napoca, Iris 410.000€
5 camere 3 bai 193mp
TOP 0% comision Imagine 2995
Casa individuala, finisata de vanzare, 120mp utili, zona Valea Garbaului
Floresti, Valea Garbaului 345.000€ 365.000€
4 camere 3 bai 120mp
TOP Imagine 1179
Casa individuala, 5 camere, 210 mp, zona VIVO
Floresti, Vivo (Polus Center) 342.000€ 372.000€
5 camere 2 bai 210mp
TOP Imagine 2652
Casa 5 camere, 242 mp, zona Somesului
Floresti, Somesului 450.000€
5 camere 2 bai 242mp