Imagine 99

Apartament de 2 camere, finisat, 46,5 mp utili, in zona Tineretului

ID: P4560 Floresti, Tineretului 6
93.618€
Descriere
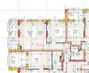
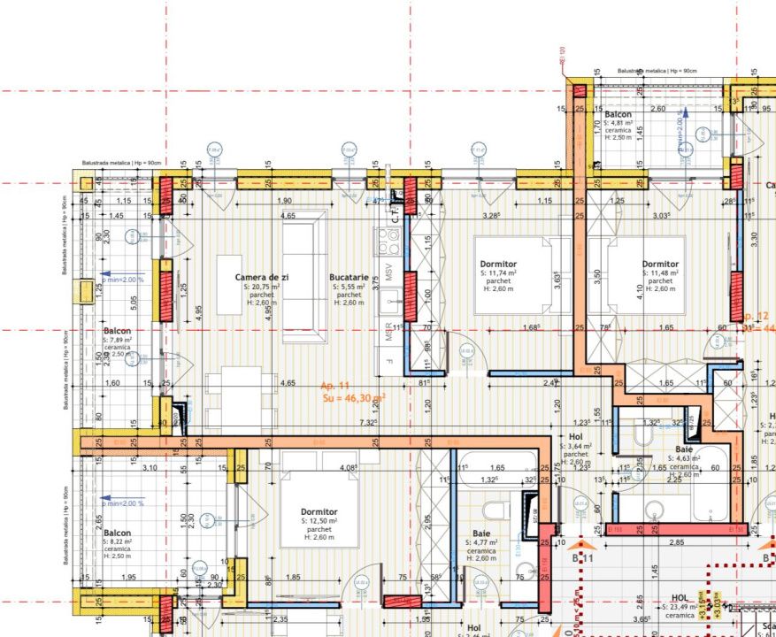
Va propunem spre vanzare un apartament de 2camere in zona Tineretului, Floresti intr-un ansamblu nou construit, compus din 4 scari de de bloc amplasat in zona de case si foarte mult spatiu verde. Caramida aparenta la exterior, izolatie de 15 cm, certificat energeti si incalzire in pardoseala,lift . Apartamentul are suprafata utila 46,3 mp, ete semidecomandat si compartimentat astfel: living cu bucatarie open space, 2 dormitoare , baie si logie de 7,89mp dupa cum poate fi vazut in schita. Disponibilitati sunt atat la parter cat si etajele 1,2,3 sau 4 al unui bloc cu regim de inaltime D + P + 4E + 1ER. Bloc cu finisaje aparte incepand de la fatada pana la etajul retras al scarii de bloc(tencuiala si glet date cu ultima generatie de tehnologie din domeniul constructiilor), lift . Predarea imobilului se va face pana in luna Mai 2026, urmand ca pana in luna Octombrie sa fie emise cartile funciare pentru fiecare apartament. Se preda finisat cu: parchet, gresie, faianta, lavabil, geamuri tripan, usi, baie complet utilata, sanitare care pot fi alese din catalogul constructorului, incalzire in pardoseala.Toate baile sunt dotate cu vas de toaleta suspendat si dus cu panou de sticla.De asemenea scicla securizata se va gasi si in partea exterioara a logiilor. Parcare exterioara disponibila la pretul de 5600 Euro sau subterana la pretul de 9520 Euro. In pretul afisat este inclus TVA-ul de 21%. Pentru mai multe detalii sau pentru programarea unei vizionari va asteptam la telefon. Compartimentarile pot fi vazut in prima scara de bloc deja construita.ID Extern: P4560
Caracteristici
  • ID:P4560
  • Nr. camere:2
  • Nr. dormitoare:1
  • S. utila:46.30 mp
  • S. balcoane:7.89 mp
  • S. construita:57.00 mp
  • Comp.:Semidecomandat
  • Etaj:Etaj 1
  • Nr. bucatarii:1
  • Nr. bai:1
  • Nr. balcoane:1
  • An constructie:2025
  • Structura:Caramida
  • Regim inaltime:S+P+4
Specificatii
Curent
Apa
Canalizare
Centrala proprie
Faianta
Parchet
Ferestre Termopan
Usa intrare PVC
Usa interior PVC
Bucatarie Nemobilata
Apometre
Contor gaz
Nemobilat
Interfon
Lift
Localizare
Andrei Ciocoiu
Manager
Esti interesat de aceasta proprietate ?
Proprietati similare
TOP Imagine 11205
Apartament 2 camere, 41,82mp | Zona Eroilor | Floresti |
Floresti, Eroilor 84.000€ 85.000€
2 camere 1 baie 41.82mp
TOP Imagine 9950
BLOC NOU! 1500E/MP TVA INCLUS! 3 camere 2 terase!
Floresti, Terra 88.500€
3 camere 1 baie 58.53mp
TOP Imagine 9942
BLOC NOU! 1680E/MP TVA INCLUS! 2 Camere 51mp, terasa 10mp, zona Terra
Floresti, Terra 86.120€
2 camere 51.26mp
TOP Imagine 9935
BLOC NOU! 1680E/MP TVA INCLUS! 3 Camere 59mp, terasa 26mp, zona Terra
Floresti, Terra 104.890€ 111.551€
3 camere 58.91mp
TOP Imagine 3394
Apartament de 2 camere,finisat, 40,65 mp utili, in zona Tineretului
Floresti, Tineretului Pret la cerere Pret la cerere
2 camere 1 baie 40.65mp
TOP Imagine 3383
Apartament de 2 camere, finisat, 43,31 mp utili, in zona Tineretului
Floresti, Tineretului 87.572€
2 camere 1 baie 43.31mp