Imagine 99

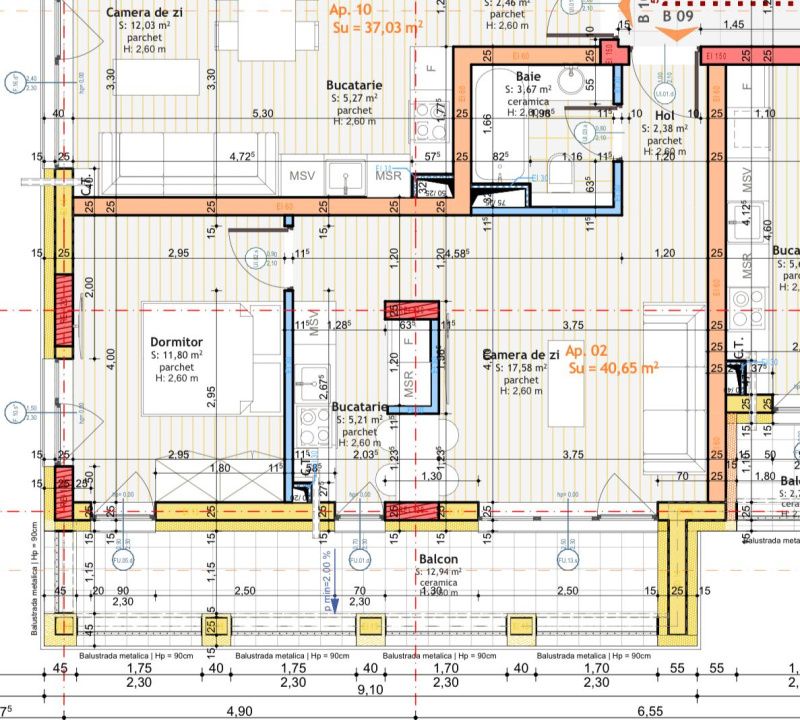
Apartament de 2 camere,finisat, 40,65 mp utili, in zona Tineretului

ID: P4569 Floresti, Tineretului 1
Pret la cerere Pret la cerere
Descriere
Va propunem spre vanzare un apartament de 2camere in zona Tineretului, Floresti intr-un ansamblu nou construit, compus din 4 scari de de bloc amplasat in zona de case si foarte mult spatiu verde. Caramida aparenta la exterior, izolatie de 15 cm, certificat energeti si incalzire in pardoseala. Apartamentul are suprafata utila 40.65mp, este semidecomandat si compartimentat astfel: living cu bucatarie open space, 2 dormitoare , baie si logie de 12,94 mp dupa cum poate fi vazut in schita. Disponibilitati sunt atat la parter cat si etajele 1,2,3 sau 4 al unui bloc cu regim de inaltime D + P + 4E + 1ER. Bloc cu finisaje aparte incepand de la fatada pana la etajul retras al scarii de bloc(tencuiala si glet date cu ultima generatie de tehnologie din domeniul constructiilor), lift. Predarea imobilului se va face pana in luna Mai 2026, urmand ca pana in luna Octombrie sa fie emise cartile funciare pentru fiecare apartament. Se preda finisat cu: parchet, gresie, faianta, lavabil, geamuri tripan, usi, baie complet utilata, sanitare care pot fi alese din catalogul constructorului, incalzire in pardoseala.Toate baile sunt dotate cu vas de toaleta suspendat si dus cu panou de sticla.De asemenea scicla securizata se va gasi si in partea exterioara a logiilor. Parcare exterioara disponibila la pretul de 5600 Euro sau subterana la pretul de 9520 Euro. In pretul afisat este inclus TVA-ul de 21%. Pentru mai multe detalii sau pentru programarea unei vizionari va asteptam la telefon. Compartimentarile pot fi vazut in prima scara de bloc deja construita.ID Extern: P4569
Caracteristici
  • ID:P4569
  • Nr. camere:2
  • Nr. dormitoare:1
  • S. utila:40.65 mp
  • S. terase:50.79 mp
  • S. construita:50.00 mp
  • Comp.:Semidecomandat
  • Etaj:Etaj 1
  • Nr. bucatarii:1
  • Nr. bai:1
  • Nr. balcoane:1
  • Structura:Caramida
  • Tip imobil:Bloc
  • Regim inaltime:S+P+4
Specificatii
Curent
Apa
Canalizare
Gaz
Centrala proprie
Vopsea lavabila
Faianta
Parchet
Ferestre PVC
Usa intrare PVC
Usa interior PVC
Terasa
Bucatarie Nemobilata
Apometre
Contor gaz
Nemobilat
Interfon
Lift
Localizare
Andrei Ciocoiu
Manager
Esti interesat de aceasta proprietate ?
Proprietati similare
TOP Imagine 3446
Apartament 1 camera, 15mp + 12 mp terasa | ULTRACENTRAL | Cluj
Cluj-Napoca, Centru 70.000€
1 camera 1 baie 15.21mp
TOP Imagine 3383
Apartament de 2 camere, finisat, 43,31 mp utili, in zona Tineretului
Floresti, Tineretului 87.572€
2 camere 1 baie 43.31mp
TOP Imagine 3368
Apartament de 2 camere,finisat, 37 mp utili, in zona Tineretului
Floresti, Tineretului Pret la cerere Pret la cerere
2 camere 1 baie 37mp
TOP Imagine 3324
Apartament de 2 camere, finisat, 44,2 mp utili, zona Tineretului
Floresti, Tineretului 89.392€
2 camere 1 baie 44.20mp
TOP Imagine 3244
Apartament 2 camere, 45 mp, decomandat, Zona Eroilor
Floresti, Eroilor 77.690€ + TVA
2 camere 1 baie 45.70mp
TOP Imagine 3017
Apartament 2 camere 44mp, finisat, necesita renovare, Floresti, Terra.
Floresti, Terra 75.000€
2 camere 1 baie 44mp