Imagine 99

Apartament 2 camere, 36,90mp | Zona Petrom | Baciu |

ID: P4233 Baciu, Petrom 4
83.500€
Descriere
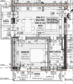
Va propunem spre vanzare apartament cu 2 camere, semidecomandat, in Baciu, zona Petrom . Proprietatea dispune de o suprafata utila de 36,90 mp cu 2 balcoane cu o suprafata totala de 10,64mp,
fiind compartimentat astfel:
-living cu bucatarie open space cu iesire în unul dintre balcoane, -un hol
-1 baie
-1 dormitor cu iesire pe cel de-al doilea balcon.
Imobilul se afla la etajul 1 din D+P+2 si exista posibilitate de achiziționare garaj subteran separat la pretul de 8500 Eur.
Predarea se va face la stadiul de semifinisat. Apartamentul se vinde prin cesiune si se poate achita doar cash.
Locatia in care se afla aceasta proprietate este una aproape de mijloacele de interes, acestea se pot enumera prin:
-Statie de BUS
-Hipermarket
-Scoli
-Gradinite
-Spatii verzi
Pretabil atat pentru investitie cat si pentru locuinta personala. Pentru mai multe detalii sau programarea unei vizionari folositi ID Extern: P4233
Caracteristici
  • ID:P4233
  • Nr. camere:2
  • Nr. dormitoare:1
  • S. utila:36.90 mp
  • S. balcoane:10.64 mp
  • S. utila totala:47.54 mp
  • S. construita:46.90 mp
  • Nr. bucatarii:1
  • Nr. bai:1
  • Nr. balcoane:2
  • Pret parcare:8.500€
  • Structura:Caramida
  • Tip imobil:Bloc
  • Regim inaltime:D+P+2
Specificatii
Curent
Apa
Canalizare
Gaz
Usa intrare Metal
Bucatarie Nemobilata
Nemobilat
Localizare
Cezar Gordan
MasterBroker
Esti interesat de aceasta proprietate ?
Proprietati similare
TOP Imagine 11205
Apartament 2 camere, 41,82mp | Zona Eroilor | Floresti |
Floresti, Eroilor 84.000€ 85.000€
2 camere 1 baie 41.82mp
TOP Imagine 9950
BLOC NOU! 1500E/MP TVA INCLUS! 3 camere 2 terase!
Floresti, Terra 88.500€
3 camere 1 baie 58.53mp
TOP Imagine 9942
BLOC NOU! 1680E/MP TVA INCLUS! 2 Camere 51mp, terasa 10mp, zona Terra
Floresti, Terra 86.120€
2 camere 51.26mp
TOP Imagine 3394
Apartament de 2 camere,finisat, 40,65 mp utili, in zona Tineretului
Floresti, Tineretului Pret la cerere Pret la cerere
2 camere 1 baie 40.65mp
TOP Imagine 3383
Apartament de 2 camere, finisat, 43,31 mp utili, in zona Tineretului
Floresti, Tineretului 87.572€
2 camere 1 baie 43.31mp
TOP Imagine 3368
Apartament de 2 camere,finisat, 37 mp utili, in zona Tineretului
Floresti, Tineretului Pret la cerere Pret la cerere
2 camere 1 baie 37mp