Imagine 99

Apartament 2 camere 56 mp + 2 balcoane

ID: P4723 Floresti, LIDL 8
89.000€ 92.000€
Descriere
Ocazie unică! Apartament de 2 camere cu acces rapid spre Cluj-Napoca prin centura Grigorescu — disponibil pentru vizionări!

Propunem spre vânzare un apartament modern, bine compartimentat și luminos, situat într-o zonă liniștită, cu acces imediat la centura Grigorescu și foarte aproape de puncte esențiale precum magazine, stații de autobuz și facilități utile. Perfect atât ca locuință personală, cât și ca investiție.

Localizare

•Contrar celor cunoscute despre acest cartier, în realitate este o zonă sigură, fără incidente de-a lungul anilor.
• Ideal pentru cei care vor să evite traficul și să ajungă rapid în oraș.

Detalii apartament

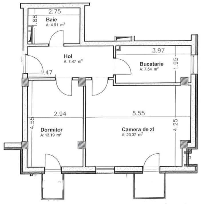
• Suprafață utilă: 56,5 mp + 2 balcoane de 3,9 mp + 1 balcon franțuzesc
• Compartimentare eficientă: 2 camere decomandate, bucătărie separată, hol, baie
• Etajul 2 într-un bloc cu lift, construit în 2020
• Bucătărie luminoasă, complet utilată (inclusiv mașină de spălat vase)
• Baie cu cadă
• Priveliște frumoasă spre curtea interioară
• Acces restricționat în ansamblu + supraveghere video
• Curte privată mare, aerisită
• Parcare inclusă – 1 loc exterior în curtea ansamblului

Dacă îți dorești un apartament spațios și modern, acesta este locul perfect pentru tine- fie ca investiție, fie ca locuință proprie!
Pentru programarea unei vizionări sau mai multe detalii, contactați-ne folosind ID extern: P4723.
Caracteristici
  • ID:P4723
  • Nr. camere:2
  • Nr. dormitoare:1
  • S. utila:56.50 mp
  • S. balcoane:3.90 mp
  • S. construita:66.50 mp
  • Comp.:Decomandat
  • Etaj:Etaj 2
  • Nr. bucatarii:1
  • Nr. bai:1
  • Nr. balcoane:2
  • Nr. parcari:1
  • An constructie:2020
  • Regim inaltime:S+P+5
Specificatii
Curent
Apa
Canalizare
Gaz
Centrala proprie
Localizare
Andrei Ciocoiu
Manager
Esti interesat de aceasta proprietate ?
Proprietati similare
TOP Imagine 11205
Apartament 2 camere, 41,82mp | Zona Eroilor | Floresti |
Floresti, Eroilor 84.000€ 85.000€
2 camere 1 baie 41.82mp
TOP Imagine 9950
BLOC NOU! 1500E/MP TVA INCLUS! 3 camere 2 terase!
Floresti, Terra 88.500€
3 camere 1 baie 58.53mp
TOP Imagine 9942
BLOC NOU! 1680E/MP TVA INCLUS! 2 Camere 51mp, terasa 10mp, zona Terra
Floresti, Terra 86.120€
2 camere 51.26mp
TOP Imagine 3394
Apartament de 2 camere,finisat, 40,65 mp utili, in zona Tineretului
Floresti, Tineretului Pret la cerere Pret la cerere
2 camere 1 baie 40.65mp
TOP Imagine 3383
Apartament de 2 camere, finisat, 43,31 mp utili, in zona Tineretului
Floresti, Tineretului 87.572€
2 camere 1 baie 43.31mp
TOP Imagine 3244
Apartament 2 camere, 45 mp, decomandat, Zona Eroilor
Floresti, Eroilor 77.690€ + TVA
2 camere 1 baie 45.70mp