Imagine 99

Apartament 2 camere 55.5 mp,ansamblu Eroilor,parcare inclusa, creditabil!

ID: P2902 Floresti, Eroilor 1
83.355€ + TVA
Descriere
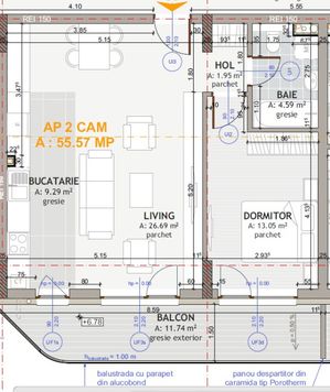
Va propunem spre vanzare apartament cu 2 camere, semidecomandat, in Floresti, zona Eroilor . Proprietatea dispune de o suprafata utila de 55.57 mp cu 11.74mp balcoane.
Fiind compartimentat astfel:
-living cu bucatarie open space insumand 36mp cu iesire înspre balcon cu
-un hol
-1 baie
-Dormitor cu iesire
Imobilul se afla la etajul 3 din 8 iar in pret este inclus un loc de parcare exterior.
Predarea se va face la stadiul de semifinisat la pretul de 1500euro/mp+TVA sau finisat 1800euro/mp+TVA.
Proprietatea se poate cumpara prin creditare cu avans de 15%!
Locatia in care se afla aceasta proprietate este una aproape de mijloacele de interes, acestea se pot enumera prin:
-Statie de BUS
-Hipermarket
-Scoli
-Gradinite
-Spatii verzi
Pretabil atat pentru investitie cat si pentru locuinta personala. Pentru mai multe detalii sau programarea unei vizionari folositi ID Extern: P2902
Caracteristici
  • ID:P2902
  • Nr. camere:2
  • Nr. dormitoare:1
  • S. utila:55.57 mp
  • S. balcoane:11.74 mp
  • S. construita:65.57 mp
  • Etaj:Etaj 3
  • Nr. bucatarii:1
  • Nr. bai:1
  • Nr. balcoane:1
  • Nr. parcari:1
  • An constructie:2026
  • Structura:Caramida
  • Tip imobil:Bloc
  • Regim inaltime:S+P+8
Specificatii
Curent
Apa
Canalizare
Gaz
Localizare
Cezar Gordan
Esti interesat de aceasta proprietate ?
Proprietati similare
TOP Imagine 3394
Apartament de 2 camere,finisat, 40,65 mp utili, in zona Tineretului
Floresti, Tineretului Pret la cerere Pret la cerere
2 camere 1 baie 40.65mp
TOP Imagine 3383
Apartament de 2 camere, finisat, 43,31 mp utili, in zona Tineretului
Floresti, Tineretului 87.572€
2 camere 1 baie 43.31mp
TOP Imagine 3368
Apartament de 2 camere,finisat, 37 mp utili, in zona Tineretului
Floresti, Tineretului Pret la cerere Pret la cerere
2 camere 1 baie 37mp
TOP Imagine 3324
Apartament de 2 camere, finisat, 44,2 mp utili, zona Tineretului
Floresti, Tineretului 89.392€
2 camere 1 baie 44.20mp
TOP Imagine 3244
Apartament 2 camere, 45 mp, decomandat, Zona Eroilor
Floresti, Eroilor 77.690€ + TVA
2 camere 1 baie 45.70mp
TOP Imagine 3017
Apartament 2 camere 44mp, finisat, necesita renovare, Floresti, Terra.
Floresti, Terra 75.000€
2 camere 1 baie 44mp