Imagine 99

Spatiu comercial 148mp, zona Manastur

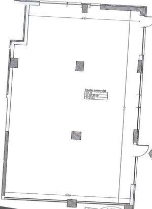
ID: P2711 Cluj-Napoca, Manastur 6
1.500€ + TVA
Descriere
Va propunem spre inchiriere un spatiu comercial in zona Manastur.
Acesta dispune de o suprafata utila de 147,5mp, cu o deschidere de 18,2 ml cu un vitraj deosebit.
Optional se poate inchiriere un loc de parcare exterior securizat cu bariera.
Compartimentarea open-space, va ofera posibilitatea de a-l compartimenta in conformitate cu nevoile specifice ale afacerii dvs, beneficiind de o inaltime de 3.2ml.
Spatiul beneficiaza de :
-Tamplarie Schuco
-Geamuri termpoan 3 camere
-Pereti din zidarie tencuiti
-Tavan din beton aparent fara tencuiala
-Pardoseala (placa beton)
-Bransament utilitati(Electricitate, apa potabila,canalizare menajera si instalatie termica a imobilului realizata pe baza centralei comune a blocului)
Pentru mai multe detalii nu ezitati sa ne contactati. ID extern: P2711
Caracteristici
  • ID:P2711
  • Nr. camere:1
  • S. utila:147.50 mp
  • S. construita:158.00 mp
  • S. vitrina:16.00 m
  • Comp.:Open space
  • Nr. parcari:1
  • An constructie:2024
  • Structura rezistenta:Caramida
  • Tip imobil:Bloc
  • Regim inaltime:P+6
Specificatii
Curent
Apa
Canalizare
Centrala imobil
Localizare
Cezar Gordan
MasterBroker
Esti interesat de aceasta proprietate ?
Proprietati similare
Imagine 11068
Închiriere spatiu comercial , zona Marasti , Cluj
Cluj-Napoca, Marasti 1.350€
1 camera 1 baie 45mp
Imagine 1058
Spațiu comercial de închiriat, zonă excelentă în Mărăști - disponibil imediat!
Cluj-Napoca, Marasti 1.500€
2 camere 1 baie 100mp
Imagine 9559
Spatiu comercial open space, 136mp, zona Iris
Cluj-Napoca, Iris 1.500€
3 camere 1 baie 136.62mp
Imagine 9552
Spatiu comercial 96 mp, parcare subterana, zona Garii
Cluj-Napoca, Centru / P-ta Garii 1.700€ + TVA
4 camere 1 baie 96.23mp
Imagine 7862
Spatiu comercial de inchiriat
Floresti, Vivo (Polus Center) 1.500€
3 camere 1 baie 60mp