Imagine 99

Cladire pt birouri pe 2 nivele, zona INTRE LACURI

ID: P5152 Cluj-Napoca, Intre Lacuri 9
1.290.000€ 1.490.000€
Descriere
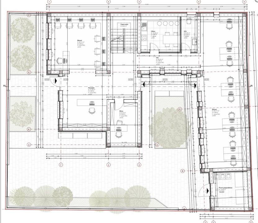
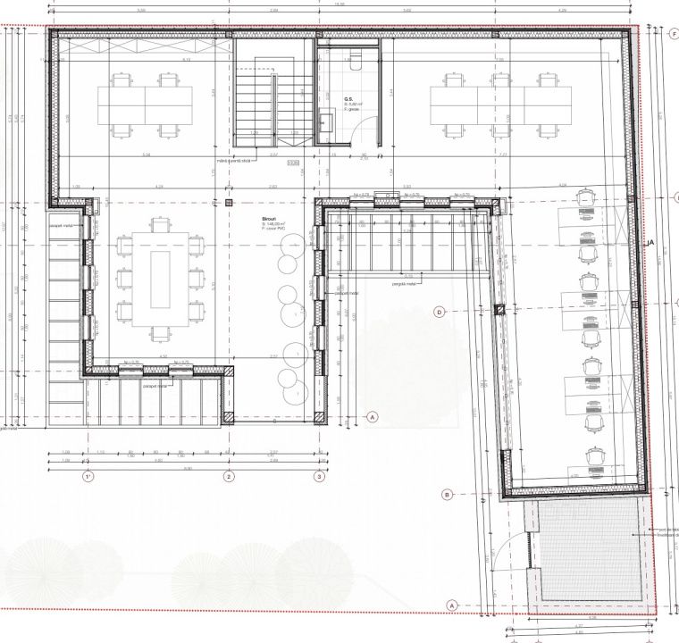
Va propunem spre vanzare CLADIRE DE BIROURI SUPRAFATA UTILA 340 MP, TEREN de 600 mp CLUJ zona INTRE LACURI. CLADIREA ARE REGIM DE INALTIME P+1, an CONSTRUCTIE 2024, proprietatea dispunde de 2 PARCARI cu poarta electrica si 6 LOCURI DE PARCARE normale. Cladirea este amplasata pe colt avand front la 2 strazi.

Predarea se face la stadiul de FINISAT si se poate compartimenta dupa bunul plac in momentul de fata fiind openspace.

Pretabil pentru INVESTITIE. Pentru mai multe detalii sau programarea unei vizionari folositi ID EXTERN: P5152
Caracteristici
  • ID:P5152
  • Nr. camere:2
  • S. utila:330.00 mp
  • S. curte:385.00 mp
  • Nr. parcari:8
  • An constructie:2024
  • Regim inaltime:P+1
Specificatii
Curent
Apa
Canalizare
Gaz
Localizare
Amalia Bodea
Broker
Esti interesat de aceasta proprietate ?