Imagine 99

Duplex - 134 mp utili - panouri fotovoltaice - Gilău Sud

ID: P2228 Gilau 1
180.900€
Descriere
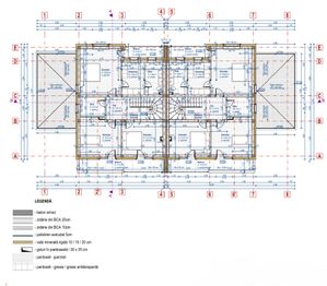
Va propunem spre vanzare un duplex ce este situat in Gilau Sud si are un regim de inaltime S+P+1.
Constructia este noua, cu finalizare in anul 2025.
Suprafata utila este de 134 mp, iar orientarea este catre est.
Locuinta este dotata cu pompe de caldura si panouri fotovoltaice, asigurand eficienta energetica si costuri reduse.
Parcarea este disponibila in curte.
Compartimentarea este bine gandita.
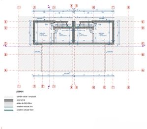
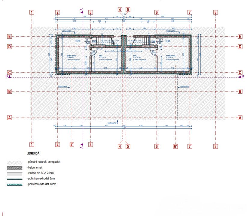
La intrare se afla un hol, in dreapta este camera de zi cu acces pe terasa de 24,16 mp si un dormitor, care are acces la beci,
in stanga se afla o baie de serviciu si bucataria separata.
La etaj, din hol se face accesul catre dormitorul matrimonial, care dispune de dressing, baie proprie si iesire pe balcon de 4,43 mp,
de asemenea se mai afla baia si doua dormitoare, fiecare avand acces la un balcon mare.
Pentru mai multe detalii si vizionari, nu ezitati sa ne contactati!
ID Extern: P2228
Caracteristici
  • ID:P2228
  • Nr. camere:5
  • Nr. dormitoare:4
  • S. utila:134.00 mp
  • S. terase:34.00 mp
  • S. teren:2900.00 mp
  • Nr. bucatarii:1
  • Nr. bai:3
  • Nr. balcoane:1
  • Nr. parcari:6
  • Nr. fronturi:1
  • An constructie:2025
  • Structura rezistenta:Caramida
  • Regim inaltime:S+P+1
Specificatii
Curent
Apa
Canalizare
Localizare
Andrei Ciocoiu
Manager
Esti interesat de aceasta proprietate ?
Proprietati similare
TOP Imagine 3095
Casa individuala , 4 camere, teren 600 mp zona Chinteni
Chinteni 205.000€
4 camere 3 bai 116mp
TOP Imagine 1285
Casa 4 camere in Suatu
Suatu 160.000€ 180.000€
4 camere 2 bai 160mp
TOP Imagine 2760
Casa 4 camere, 115mp, Zona Dezmir | Cluj
Dezmir, Central 205.000€
4 camere 3 bai 115mp
TOP Imagine 771
Casa înșiruită, 80 mp, zona Avram Iancu
Floresti, Avram Iancu 169.000€
4 camere 2 bai 80mp
TOP Imagine 804
Cabana 50 mp, cartier Zorilor
Cluj-Napoca, Zorilor 195.000€
2 camere 1 baie 50mp
TOP Imagine 1333
Cabana 2 camere, 55 mp si teren de 800 mp, zona VIVO
Floresti, Vivo (Polus Center) 173.000€
2 camere 1 baie 55mp