Imagine 99

Se inchiriaza duplex cu 5 camere, 116 mp, in Floresti|Eroilor

ID: P3756 Floresti, Eroilor 1
1.000€
Descriere
Va oferim spre inchiriere o casa duplex eleganta, cu o suprafata utila de 116 mp, amplasata intr-o zona linistita, ideala pentru o familie sau pentru amenajarea unui spatiu de birouri.Proprietatea dispune de o curte proprie, frumos organizata, oferind intimitate si confort, precum si loc de parcare in curte.
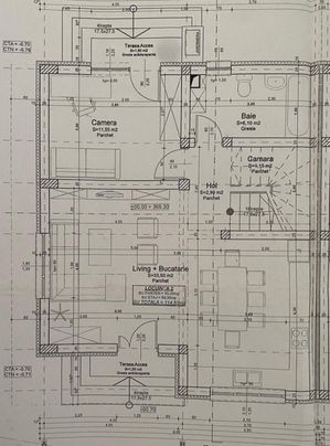
Compartimentare:
Parter:
- Bucatarie si living in regim open space, luminos si primitor
- O camera cu iesire pe terasa, suprafata acesteia fiind de 10 mp, ideala pentru birou sau dormitor de oaspeti
- Camara pentru depozitare
- Baie complet echipata
Etaj:
- Doua dormitoare spatioase, dintre care unul beneficiaza de iesire pe balcon, acesta avand o suprafata de 10 mp
- O camera suplimentara cu balcon cu o suprafata de 4,70 mp, perfecta pentru birou, dresing sau dormitor secundar

- O baie moderna, cu finisaje de calitate
Exteriorul completeaza perfect confortul interior, cu o curte amenajata cu spatiu verde si terasa, ideala pentru relaxare.
Inchirierea Imobilului, avand in vedere utilizarea acestuia pentru spatii de birouri, se efectueaza in baza unui contract pe minimum 5 ani.Pentru mai multe detalii sau programearea unei vizionari folositi ID Extern:3756
Caracteristici
  • ID:P3756
  • Nr. camere:5
  • Nr. dormitoare:2
  • S. utila:116.00 mp
  • S. terase:21.70 mp
  • S. construita:126.00 mp
  • S. teren:171.00 mp
  • Nr. bucatarii:1
  • Nr. bai:2
  • Nr. balcoane:2
  • Nr. parcari:1
  • Front stradal:10.00 m
  • Nr. fronturi:1
  • An constructie:2016
  • Structura rezistenta:Beton
  • Regim inaltime:P+1
Specificatii
Curent
Apa
Canalizare
Gaz
Centrala proprie
Bucatarie Mobilata
Bucatarie Utilata
Localizare
Andrei Ciocoiu
Manager
Esti interesat de aceasta proprietate ?
Proprietati similare
Imagine 5169
Închiriere duplex 5 camere , Iazului, Floresti
Floresti, Terra 1.000€
5 camere 3 bai 120mp
Imagine 5358
Casa individuala, 120 mp, Somesu Rece
Somesu Rece, Central 890€
3 camere 1 baie 120mp
Imagine 4744
Duplex de inchiriat 110 mp + 250 mp curte in Floresti zona Terra
Floresti, Terra 1.000€
5 camere 2 bai 110mp