Imagine 99

Duplex de vanzare in Floresti

ID: P4174 Floresti, Vivo (Polus Center) 1
220.000€
Descriere
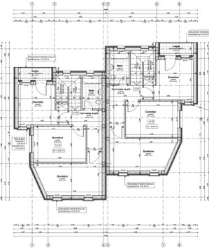
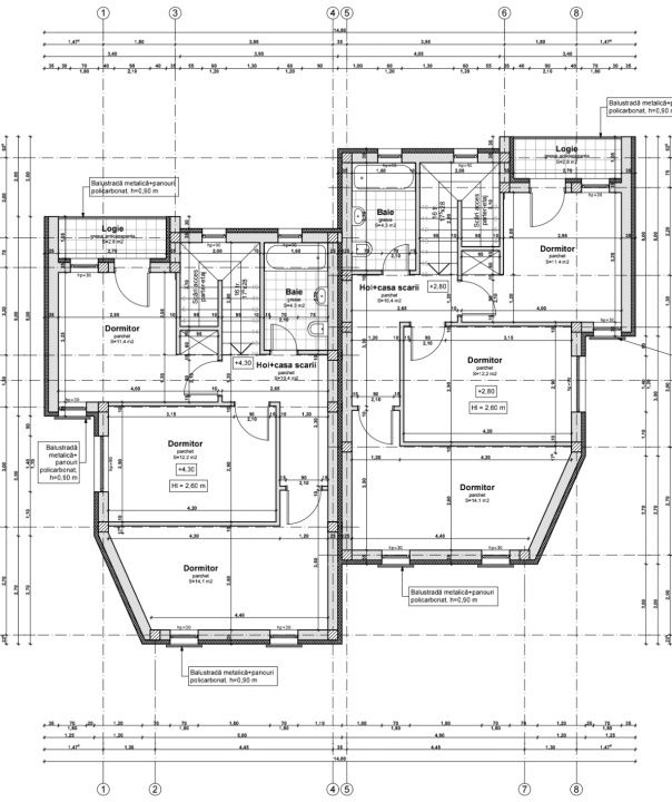
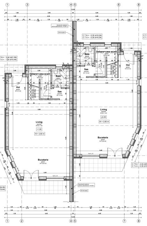
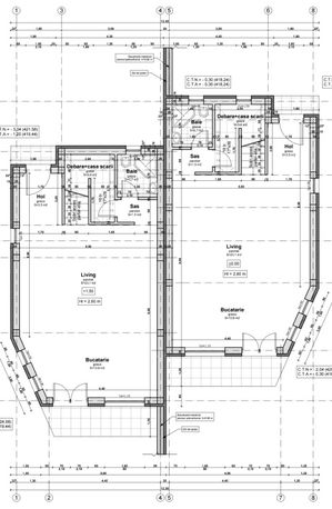
Va propunem spre vanzare duplex in Floresti cu o suprafata utila totala de 115.20mp. Imobilul are un regim de inaltime P+1 si este compartimentat astfel:
- Parter - Living 23.10mp cu bucatarie 13.62mp
- Sas 1.5mp
- Baie 2.70mp
- Debara si casa scarii 5.62mp
- Hol 3.50mp
Etaj - Dormitor 14.10mp
- Dormitor 12.20mp
- Dormitor 11.40mp cu Logie de 2.80mp
- Hol și casă scarii 10.40mp
- Baie 4.30mp
Pretabil pentru locuinta personala. Pentru mai multe detalii sau programarea unei vizionari folositi ID Extern: P4174
Caracteristici
  • ID:P4174
  • Nr. camere:4
  • Nr. dormitoare:3
  • S. utila:105.20 mp
  • S. terase:10.00 mp
  • S. construita:60.00 mp
  • S. teren:200.00 mp
  • Nr. bucatarii:1
  • Nr. bai:2
  • Nr. fronturi:1
  • An constructie:2026
  • Regim inaltime:P+1
Specificatii
Curent
Apa
Canalizare
Gaz
Localizare
Bogdan Rus
Esti interesat de aceasta proprietate ?
Proprietati similare
TOP Imagine 3095
Casa individuala , 4 camere, teren 600 mp zona Chinteni
Chinteni 205.000€
4 camere 3 bai 116mp
TOP Imagine 7846
Casa individuala NZEB, 170mp utili, 500mp teren, 3 parcari Chinteni
Chinteni, Central 236.900€
4 camere 2 bai 170mp
TOP Imagine 1378
Duplex 4 camere, Suprafata 143 mp, curte 450 mp, Apahida
Apahida 230.000€
4 camere 3 bai 143mp
TOP Imagine 2760
Casa 4 camere, 115mp, Zona Dezmir | Cluj
Dezmir, Central 205.000€
4 camere 3 bai 115mp
TOP Imagine 724
Duplex cu 4 camere, 92 MP, zona Urusagului, Floresti
Floresti, Sesul de Sus 222.000€ + TVA
4 camere 2 bai 92mp
TOP Imagine 804
Cabana 50 mp, cartier Zorilor
Cluj-Napoca, Zorilor 195.000€
2 camere 1 baie 50mp