Imagine 99

Casa tip duplex, 4 camere 2 bai, 180mp teren, zona Tineretului

ID: P3463 Floresti, Tineretului 8
195.000€ + TVA
Descriere
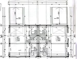
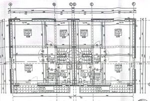
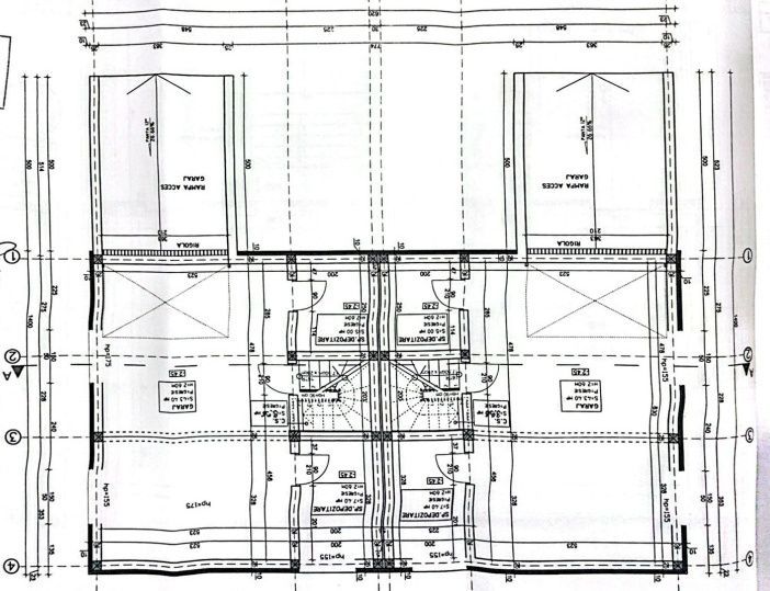
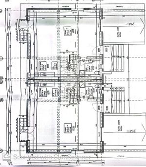
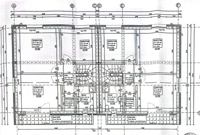
Va propunem spre vanzare o casa tip duplex in Floresti zona Tineretului Aceasta dispune de o suprafata utila de 111mp, suprafata terenului fiind de 182 mp dintre care 61mp este amprentra la sol, ceea ce inseamna ca avem o suprafata de teren liber 121mp. Compartimentarea casei care dispune de un regim de inaltime S+P+E+Pod este urmatoarea:
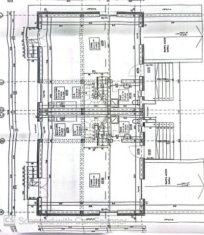
-Subsol: Format din garaj si 2 spatii de depozitare
-Parter: Format din living cu bucatarie open space, baie si casa scarii.
-Etaj: Format din 3 dormitoare, baie si un dressing
-Pod: Ca si spatiu de depozitare pe toata suprafata casei
Proprietatea detine un sistem de incalzire in pardoseala, are curtea amenajata cu pavele iar locurile de parcare sunt asigurate de garajul propriu. Proprietatea se va preda la stadiul de semifinisat. Anul constructiei este 2025 cu predare in 2026, casa construita cu materiale de inalta calitate, izolatie 15cm, acoperis din tigla ceramica, ferestre tripan pentru un plus de confort si sistemul de incalzire in pardoseala atent ales cu predare in Iulie 2026. Accesul la gradina din spate se poate face prin lateralul casei, intreaga proprietate este imprejmuita cu gard. Pentru mai multe detalii sau pentru a programa o vizionare va rugam folositi ID EXTERN: P3463
Caracteristici
  • ID:P3463
  • Nr. camere:4
  • Nr. dormitoare:3
  • S. utila:111.34 mp
  • S. construita:184.00 mp
  • S. teren:182.50 mp
  • Nr. bucatarii:1
  • Nr. bai:2
  • Nr. balcoane:1
  • Nr. parcari:2
  • Nr. garaje:1
  • Front stradal:8.15 m
  • Nr. fronturi:1
  • An constructie:2025
  • Structura rezistenta:Caramida
  • Regim inaltime:S+P+1
  • Orientare:Nord-Sud
Specificatii
Curent
Apa
Canalizare
Gaz
Localizare
Cezar Gordan
MasterBroker
Esti interesat de aceasta proprietate ?
Proprietati similare
TOP Imagine 3095
Casa individuala , 4 camere, teren 600 mp zona Chinteni
Chinteni 205.000€
4 camere 3 bai 116mp
TOP Imagine 2760
Casa 4 camere, 115mp, Zona Dezmir | Cluj
Dezmir, Central 205.000€
4 camere 3 bai 115mp
TOP Imagine 724
Duplex cu 4 camere, 92 MP, zona Urusagului, Floresti
Floresti, Sesul de Sus 222.000€ + TVA
4 camere 2 bai 92mp
TOP Imagine 771
Casa înșiruită, 80 mp, zona Avram Iancu
Floresti, Avram Iancu 169.000€
4 camere 2 bai 80mp
TOP Imagine 804
Cabana 50 mp, cartier Zorilor
Cluj-Napoca, Zorilor 195.000€
2 camere 1 baie 50mp
TOP Imagine 1669
Casa tip cvadriplex 4 camere, 150 mp, Zona Sub Cetate
Floresti, Cetatii 199.000€ 219.000€
4 camere 2 bai 150mp