Imagine 99

Duplex in constructie, 4camere 3 bai, 200mp teren, Teilor, Floresti

ID: P5483 Floresti, Teilor 1
170.000€
Descriere
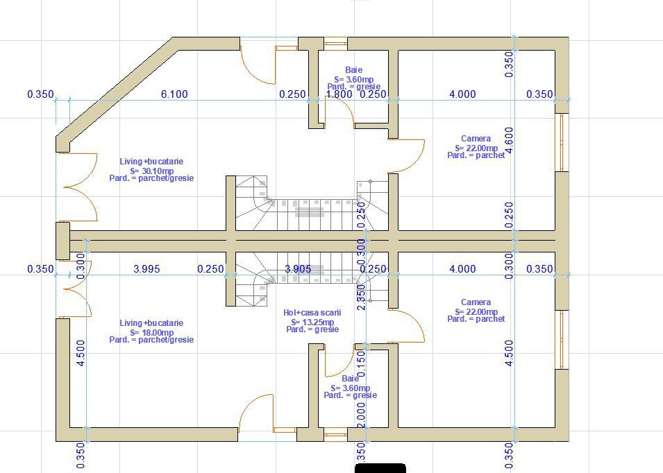
Va propunem spre vanzare o casa tip duplex in Floresti, zona Teilor. Aceasta dispune de o suprafata utila de 120 mp, suprafata terenului fiind de 200 mp dintre care 60 mp este amprentra la sol, ceea ce inseamna ca avem o suprafata de teren liber de 140 mp.
Compartimentarea casei care dispune de un regim de inaltime P+E este urmatoarea:
-Parter: Antreu, living generos open space cu bucataria, baie si 1 dormitor de 22mp
-Etaj: Antreu, baie cu geam, 2 dormitoare, Unul dintre dormitoare avand acces catre balcon propriu de 4,8mp
Proprietatea detine un sistem de incalzire in pardoseala, se va preda la stadiul de semifinisat. Anul constructiei este 2026, casa construita cu materiale de inalta calitate, izolatie, ferestre tripan pentru un plus de confort si sistemul de incalzire in pardoseala atent ales.
Intreaga proprietate va fi imprejmuita cu gard. Pentru mai multe detalii sau pentru a programa o vizionare va rugam folositi ID EXTERN: P5483
Caracteristici
  • ID:P5483
  • Nr. camere:4
  • Nr. dormitoare:3
  • S. utila:120.00 mp
  • S. terase:16.20 mp
  • S. construita:136.60 mp
  • S. teren:200.00 mp
  • Nr. bucatarii:1
  • Nr. bai:3
  • Nr. balcoane:1
  • Nr. parcari:2
  • Front stradal:10.16 m
  • Nr. fronturi:1
  • An constructie:2026
  • Structura rezistenta:Caramida
  • Regim inaltime:P+1
  • Orientare:Mixta
Specificatii
Curent
Apa
Canalizare
Gaz
Localizare
Cezar Gordan
MasterBroker
Esti interesat de aceasta proprietate ?
Proprietati similare
TOP Imagine 1285
Casa 4 camere in Suatu
Suatu 160.000€ 180.000€
4 camere 2 bai 160mp
TOP Imagine 771
Casa înșiruită, 80 mp, zona Avram Iancu
Floresti, Avram Iancu 169.000€
4 camere 2 bai 80mp
TOP Imagine 804
Cabana 50 mp, cartier Zorilor
Cluj-Napoca, Zorilor 195.000€
2 camere 1 baie 50mp
TOP Imagine 1333
Cabana 2 camere, 55 mp si teren de 800 mp, zona VIVO
Floresti, Vivo (Polus Center) 173.000€
2 camere 1 baie 55mp
Imagine 11504
Duplex 120mp, zona Avram Iancu, Floresti
Floresti, Avram Iancu 189.000€
4 camere 2 bai 120mp
Imagine 10740
Duplex NZEB 4 CAM, SU 123.27 MP, TEREN 566 mp in CHINTENI
Chinteni 190.600€
4 camere 2 bai 123.20mp