Imagine 99

Proiect Nou – 3 Case Parter în Construcție, Popești | Finalizare 2026

ID: P2331 Popesti 6
269.000€
Descriere
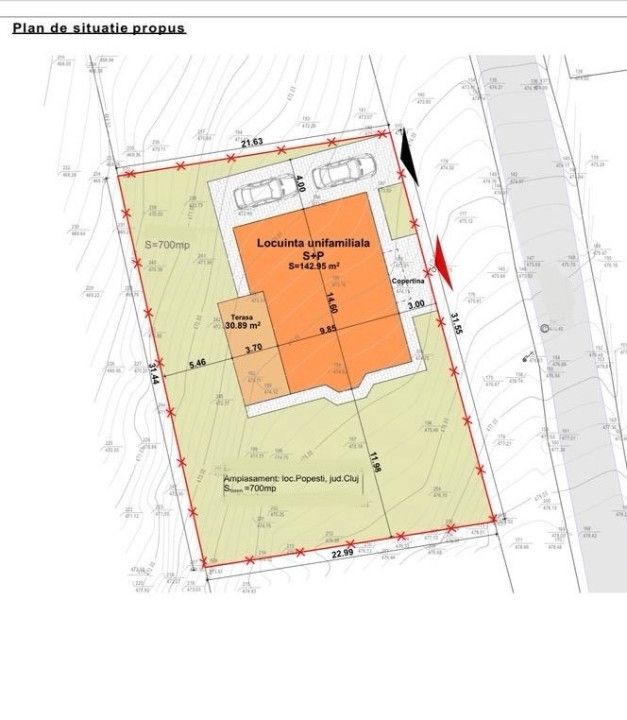
Va propunem spre vanzare un nou proiect rezidential format din 3 case individuale tip parter, aflate in constructie, cu termen de finalizare in 2026.
Casele sunt pozitionate intr-o zona linistita din Popesti, ideale pentru familii care isi doresc confort, spatiu generos si intimitate.
Fiecare casa are o suprafata utila de 142,95 mp si o terasa de 30,89 mp.
Doua dintre case dispun de un teren de 600 mp, iar o casa beneficiaza de 700 mp de teren.
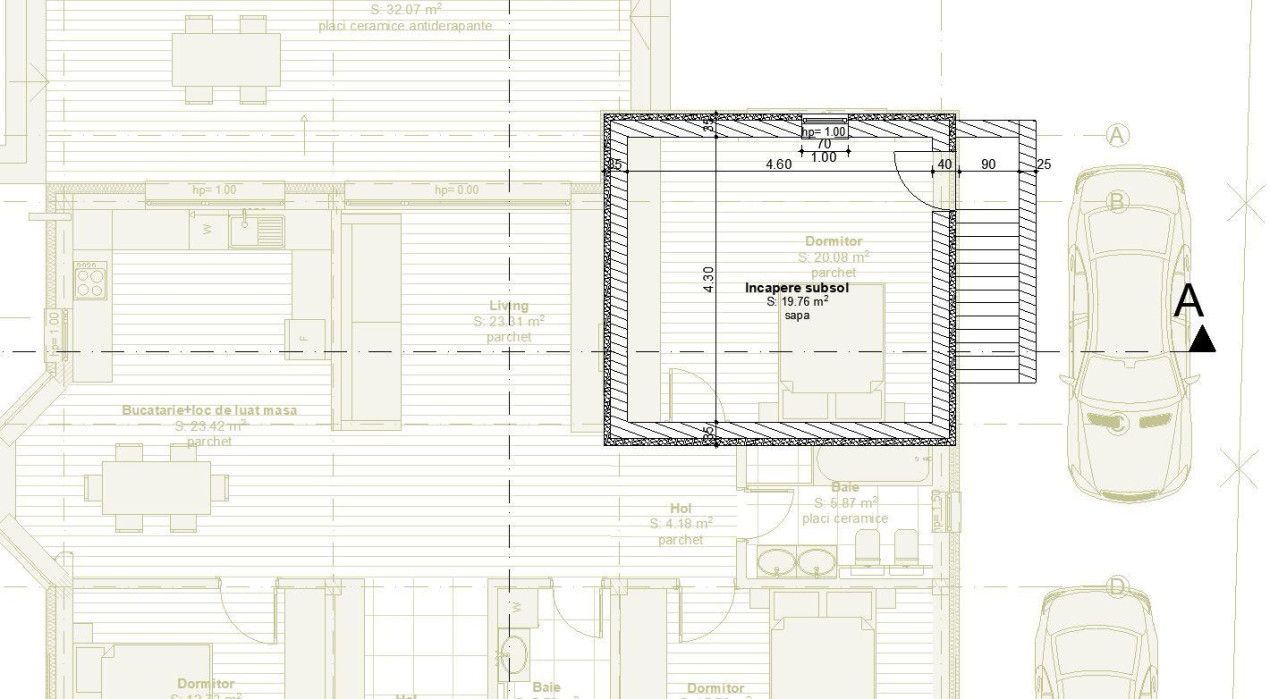
In plus, fiecare locuinta are o incapere subsol de 19,76 mp, ideala pentru depozitare.
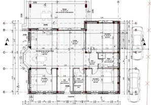
Compartimentarea este gandita pentru confort si functionalitate.
La intrare se afla un hol spatios cu acces spre livingul generos.
In stanga livingului se afla bucataria separata si accesul catre un dormitor.
In partea dreapta sunt pozitionate doua dormitoare si doua bai.
Fiecare casa beneficiaza de doua locuri de parcare in curte si o gradina generoasa pentru relaxare.
Locatie: Popesti
Termen de finalizare: 2331
Contacteaza echipa pentru mai multe detalii sau pentru a programa o vizionare!
ID Extern: P1153
Caracteristici
  • ID:P2331
  • Nr. camere:4
  • Nr. dormitoare:3
  • S. utila:142.95 mp
  • S. terase:30.89 mp
  • S. teren:600.00 mp
  • Nr. bucatarii:1
  • Nr. bai:2
  • Nr. parcari:2
  • Front stradal:25.00 m
  • Nr. fronturi:1
  • An constructie:2026
  • Structura rezistenta:Caramida
Specificatii
Curent
Apa
Canalizare
Gaz
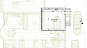
Localizare
Andrei Ciocoiu
Manager
Esti interesat de aceasta proprietate ?
Proprietati similare
TOP Imagine 3410
Casa tip duplex, 200 mp, zona Tautiului
Floresti, Subcetate 265.000€
5 camere 2 bai 200mp
TOP Imagine 3090
Casă pe un singur nivel, Popești, jud. Cluj
Popesti 279.000€
4 camere 2 bai 114mp
TOP Imagine 3034
Duplex de vanzare, finisat si mobilat, Gilau | Zona centrala
Gilau 275.000€
4 camere 2 bai 120mp
TOP Imagine 7846
Casa individuala NZEB, 170mp utili, 500mp teren, 3 parcari Chinteni
Chinteni, Central 236.900€
4 camere 2 bai 170mp
TOP Imagine 1378
Duplex 4 camere, Suprafata 143 mp, curte 450 mp, Apahida
Apahida 230.000€
4 camere 3 bai 143mp
TOP Imagine 1925
Casa individuala 120mp utili, 235mp teren, zona Apahida | Cluj
Apahida, Primariei 295.000€
5 camere 2 bai 120mp