Imagine 99

CASA INDIVIDUALA 4 CAM, SU 120 MP, 2 BALCOANE IN DEZMIR

ID: P5047 Dezmir 7
198.000€
Descriere
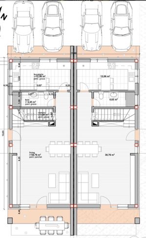
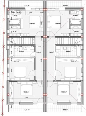
Va propunem spre vanzare CASA INDIVIDUALA cu 4 CAMERE SUPRAFATA UTILA 150 MP 2 balcoane de 5.12 mp si teren de 250 mp in Dezmir. CASA ARE REGIM DE INALTIME P+1, compus din 4 CAMERE dupa cum urmeaza:

Parter:

- bucatarie
- baie
- casa scarii
- living

Etaj

- 3 dormitoare
- 2 bai
- dressing
- 2 balcoane de 5.12 mp fiecare


Predarea se face la stadiul de SEMIFINISAT cu urmatoarele dotari:


Pretabil atat pentru INVESTITIE cat si pentru LOCUINTA PERSONALA. Pentru mai multe detalii sau programarea unei vizionari folositi ID EXTERN: P5047
Caracteristici
  • ID:P5047
  • Nr. camere:4
  • Nr. dormitoare:3
  • S. utila:120.00 mp
  • S. teren:250.00 mp
  • Nr. bucatarii:1
  • Nr. bai:3
  • Nr. balcoane:2
  • Nr. parcari:2
  • Regim inaltime:P+1
Specificatii
Curent
Apa
Canalizare
Gaz
Localizare
Amalia Bodea
Broker
Esti interesat de aceasta proprietate ?
Proprietati similare
TOP Imagine 3095
Casa individuala , 4 camere, teren 600 mp zona Chinteni
Chinteni 205.000€
4 camere 3 bai 116mp
TOP Imagine 2760
Casa 4 camere, 115mp, Zona Dezmir | Cluj
Dezmir, Central 205.000€
4 camere 3 bai 115mp
TOP Imagine 724
Duplex cu 4 camere, 92 MP, zona Urusagului, Floresti
Floresti, Sesul de Sus 222.000€ + TVA
4 camere 2 bai 92mp
TOP Imagine 771
Casa înșiruită, 80 mp, zona Avram Iancu
Floresti, Avram Iancu 169.000€
4 camere 2 bai 80mp
TOP Imagine 804
Cabana 50 mp, cartier Zorilor
Cluj-Napoca, Zorilor 195.000€
2 camere 1 baie 50mp
TOP Imagine 1669
Casa tip cvadriplex 4 camere, 150 mp, Zona Sub Cetate
Floresti, Cetatii 199.000€ 219.000€
4 camere 2 bai 150mp