Imagine 99

Duplex semifinisat 146 mp utili | garaj | Chinteni

ID: P4627 Chinteni, Central 8
205.000€
Descriere
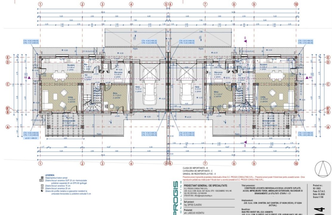
Va propunem spre vanzare, duplex nou cu 2 unitati disponibile, regim de inaltime P+1, construite in 2024.
Se afla in zona centrala Chinteni.
Proprietatile se predau semifinisate.
Fiecare proprietate are o suprafata utila de 146 mp, plus 23 mp pentru garaj.
Amprenta la sol este de 60 mp, iar balconul are o suprafata de 8 mp.
Terasa masoara 32 mp, iar curtea are 430 mp.
Compartimentarea include la parter, veti gasi un living cu bucatarie open space, o baie de serviciu, un birou si un spatiu de depozitare sub scara.
La etaj doua dormitoare normale, un dormitor matrimonial cu baie proprie si o baie pe hol.
Proprietatile beneficiaza de toate utilitatile necesare, avand o parcare exterioara si un garaj.
Pentru mai multe informatii sau pentru a programa o vizionare, nu ezitati sa ne contactati!

ID Extern: P4627
Caracteristici
  • ID:P4627
  • Nr. camere:4
  • Nr. dormitoare:3
  • S. utila:137.00 mp
  • S. terase:32.00 mp
  • S. teren:215.00 mp
  • Nr. bucatarii:1
  • Nr. bai:3
  • Nr. balcoane:1
  • Nr. parcari:1
  • Nr. garaje:1
  • Nr. fronturi:1
  • An constructie:2024
  • Structura rezistenta:Caramida
  • Regim inaltime:P+1
Specificatii
Curent
Apa
Canalizare
Gaz
Localizare
Violeta Aricescu
Junior Broker
Esti interesat de aceasta proprietate ?
Proprietati similare
TOP Imagine 3095
Casa individuala , 4 camere, teren 600 mp zona Chinteni
Chinteni 205.000€
4 camere 3 bai 116mp
TOP Imagine 1378
Duplex 4 camere, Suprafata 143 mp, curte 450 mp, Apahida
Apahida 230.000€
4 camere 3 bai 143mp
TOP Imagine 2760
Casa 4 camere, 115mp, Zona Dezmir | Cluj
Dezmir, Central 205.000€
4 camere 3 bai 115mp
TOP Imagine 724
Duplex cu 4 camere, 92 MP, zona Urusagului, Floresti
Floresti, Sesul de Sus 222.000€ + TVA
4 camere 2 bai 92mp
TOP Imagine 804
Cabana 50 mp, cartier Zorilor
Cluj-Napoca, Zorilor 195.000€
2 camere 1 baie 50mp
TOP Imagine 1669
Casa tip cvadriplex 4 camere, 150 mp, Zona Sub Cetate
Floresti, Cetatii 199.000€ 219.000€
4 camere 2 bai 150mp