Imagine 99

Apartament cu 2 camere, 53 mp, terasa 33mp, finisat, zona Sub Cetate

ID: P2602 Floresti, Subcetate 6
125.000€
Descriere
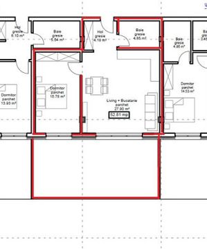
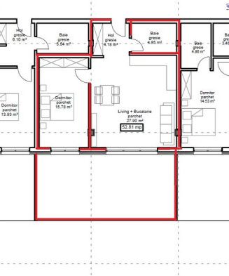
Propunem spre vanzare apartament 2 camere semidecomanat in zona Sub Cetate . Apartamentul cu suprafata Utila de 53 mp, la care se adauga 33 mp de terasa. Compus din living, dormitor, bucatarie, hol baie. Anul constructiei 2024, etaj 1 , cu predare finisata (gresie,parchet,strat lavabil, baie completa) locatia in care se afla imobilul fiind una aproape de zonele de interes, precum: statie de BUS, hipermarket, scoli, gradinite, si tot odata beneficiem de zona verde. Pentru mai multe detalii programati o vizionare. Stadiul de predare este de semifinisat. Apartamentul dispune de un loc de parcare subteran , pe care il puteti achizitiona separat la pretul de 10000 euro
Pentru mai multe detalii sau programarea unei vizionari, folositi ID Extern: P2602
Caracteristici
  • ID:P2602
  • Nr. camere:2
  • Nr. dormitoare:1
  • S. utila:53.00 mp
  • S. terase:33.00 mp
  • S. construita:60.00 mp
  • Comp.:Semidecomandat
  • Etaj:Etaj 1
  • Nr. bucatarii:1
  • Nr. bai:1
  • Nr. garaje:1
  • An constructie:2023
  • Structura:Caramida
  • Tip imobil:Bloc
  • Regim inaltime:S+P+3
Specificatii
Curent
Apa
Canalizare
Gaz
Bloc izolat termic
Localizare
Cezar Gordan
MasterBroker
Esti interesat de aceasta proprietate ?
Proprietati similare
TOP Imagine 12005
APARTAMENT cu 3 camere, 70MP, in BACIU
Baciu, Magnoliei 130.000€
3 camere 1 baie 70mp
TOP Imagine 3454
Apartament 3 camere, doua bai, terasa 10mp, ultrafinisat, zona Terra
Floresti, Terra 132.500€
3 camere 2 bai 54mp
TOP Imagine 3378
Apartament de 3 camere, finisat, 57,15 mp utili, in zona Tineretului
Floresti, Tineretului 115.557€
3 camere 1 baie 57.15mp
TOP Imagine 3269
Apartament de 3 camere, 62 mp utili, 35 mp terasa, 2 bai, Muzeul Apei
Floresti, Muzeul Apei 117.500€ 127.530€
3 camere 2 bai 62mp
TOP Imagine 3266
Apartament de 2 camere, finisat, cu gradina, zona VIVO
Floresti, Vivo (Polus Center) 123.000€
2 camere 1 baie 51.09mp
TOP Imagine 3259
Apartament de 3 camere, 71.34 mp utili, 8,63 balcon, Muzeul Apei
Floresti, Muzeul Apei 121.300€ 132.200€
3 camere 1 baie 71.34mp