Imagine 99

Apartament 2 camere in zona Eroilor

ID: P4290 Floresti, Eroilor 8
126.100€
Descriere
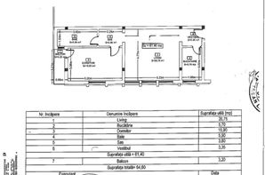
Va propunem spre vanzare apartament cu 2 camere, semidecomandat, in Floresti, zona Eroilor .

Proprietatea dispune de o suprafata utila de 61.40 mp cu 1 balcon de 3.20 mp

fiind compartimentat astfel:
- 1 living
- 1 bucatarie
- 1 baie
- 1 dormitor

Imobilul se afla la etajul 2 din 3

Pretabil atat pentru investitie cat si pentru locuinta personala. Pentru mai multe detalii sau programarea unei vizionari folositi ID Extern: P4290
Caracteristici
  • ID:P4290
  • Nr. camere:2
  • Nr. dormitoare:1
  • S. utila:61.41 mp
  • S. balcoane:3.20 mp
  • Comp.:Semidecomandat
  • Etaj:Etaj 2
  • Nr. bucatarii:1
  • Nr. bai:1
  • Nr. balcoane:1
  • Regim inaltime:P+3
Specificatii
Curent
Apa
Canalizare
Gaz
Localizare
Amalia Bodea
Broker
Esti interesat de aceasta proprietate ?
Proprietati similare
TOP Imagine 12005
APARTAMENT cu 3 camere, 70MP, in BACIU
Baciu, Magnoliei 130.000€
3 camere 1 baie 70mp
TOP Imagine 3454
Apartament 3 camere, doua bai, terasa 10mp, ultrafinisat, zona Terra
Floresti, Terra 132.500€
3 camere 2 bai 54mp
TOP Imagine 3378
Apartament de 3 camere, finisat, 57,15 mp utili, in zona Tineretului
Floresti, Tineretului 115.557€
3 camere 1 baie 57.15mp
TOP Imagine 3269
Apartament de 3 camere, 62 mp utili, 35 mp terasa, 2 bai, Muzeul Apei
Floresti, Muzeul Apei 117.500€ 127.530€
3 camere 2 bai 62mp
TOP Imagine 3266
Apartament de 2 camere, finisat, cu gradina, zona VIVO
Floresti, Vivo (Polus Center) 123.000€
2 camere 1 baie 51.09mp
TOP Imagine 3259
Apartament de 3 camere, 71.34 mp utili, 8,63 balcon, Muzeul Apei
Floresti, Muzeul Apei 121.300€ 132.200€
3 camere 1 baie 71.34mp